Entire place in Ohio, USA
72 Places
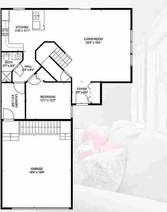
Seth, 27
Lease Takeover - November RENT FREE
Entire place | Columbus, OH, USA
NOT a room share; this is your own private apartment.I recently bought a home and need someone to take over my lease at Northpark Place Apartments in Columbus.The apartment is move-in ready right now, and November rent is already paid, so you can live FREE until December 1!. Apartment details: • Ground-floor luxury unit • Close to gym, pool, and mailboxes • Pet-friendly community • Lease runs until February 19, 2026 (renewable) • Rent: $1415/month (utilities not included) • Move-in ready immediatelyThere will be an application process through the apartment complex. There is a $49 application fee, but I will cover that if everything goes through.
Available Date: Immediately
Email Validated
Phone Validated
austin sterling, 40
New Listing
Entire place | Greenview Avenue, Garfield Heights, OH, USA
Hi, my name is austin sterling. I am a 40-year old professional. I am listing a vacant apartment in Garfield Heights. The monthly rent is $1050 and the place is available immediately.
Available Date: Immediately
Email Validated
Phone Validated
Ikeeda, 37
3 Bedroom Detached - Riverside
Entire place | Glidden Avenue, Windsor, ON, Canada
Located in the highly sought-after Riverside neighbourhood, this spacious family home offers comfort, character, and convenience.✨ Features: • Bright main-floor family room with cozy gas fireplace • Enclosed front porch – perfect for morning coffee or extra storage • Generous kitchen with raised breakfast bar • Large dining room with built-in bar – great for entertaining • Mud room with two separate entrances • 3 bedrooms upstairs + 1 bedroom in the finished basement • Ample storage space throughout🚗 Finished driveway with detached garage🌳 Fully fenced backyard with a relaxing hot tub💰 Rent: $/month (utilities not included)📅 Available immediatelyEnjoy living in one of Windsor’s most desirable areas — close to parks, schools, shopping, and the scenic Riverside trails.
Available Date: Immediately
Email Validated
Phone Validated
Brianna, 20
Verve Apartments!!
Entire place | Ann Arbor, MI, USA
🏙️ Spring Sublease / Lease Takeover – Brand New VERVE Apartments! ✨📍 S. Forest Ave | Floor 3 | Right on central campus Hi everyone! 👋 We’re looking for people to take over our lease for Spring semester while we’re abroad.We’re subleasing a luxury unit (4 private bedrooms + 4 private bathrooms) in the beautiful new VERVE Apartments. Each of us is happy to chat with potential subleasers to make sure it’s a good fit 🤝.👉 Whether you’re a group of person interested, you’re welcome to reach out!📅 Lease Term: Dec – July 💰 Rent: Open to discussionUnit Details ( sq ft):🛏️ Fully furnished bedrooms (full bed, desk, walk-in closet)🚿 Private bathrooms🧺 In-unit washer + dryer📶 WiFi & TV includedVERVE Amenities:🏊 Rooftop pool + hot tub & jumbotron🔥 Clubhouse w/ fireplace, outdoor kitchens & cabanas💪 Two-story fitness center, yoga studio, sauna & meditation rooms🐾 Dog park, bike storage & EV stations📚 Private study rooms + conference spaces☕ Full-service coffee bar📦 package lockers📩 DM me for more info, photos, or a tour – spots will go fast!
Available Date: Immediately
Email Validated
Phone Validated
Muhammad, 33
Private room in two bedroom apt
Entire place | Olentangy, Columbus, OH, USA
Looking for a student or healthcare professional to rent a cozy, private room in a quiet wand friendly home. Perfect for OSU students, interns, or Riverside Methodist Hospital employees!✨ Rent: $/month💡 Utilities: All included (water, gas, internet, trash) – only electricity bill shared separately🛁 Bathroom: Shared📶 Wi-Fi: High-speed internet included🚗 Parking: Free street parking available🚲 Commute: • 8 mins to OSU Campus • 5 mins to Riverside Methodist Hospital • Near bus stops, grocery stores, and restaurants🏠 About the Place: • Quiet, safe neighborhood • Shared kitchen and living area • Laundry available on- • No smoking, no petsIdeal for students, medical interns, or working professionals who appreciate a peaceful and clean living environment. Contact details.
Available Date: Immediately
ID Checked
Email Validated
Phone Validated
Alisha, 21
SUBLEASING JANUARY WEST QUAD
Entire place | Village West Apartments, Zanesville, OH, USA
Room Available for Spring Semester (Jan–June )!Looking for a great place near campus? I’m leasing out my room in a 2-bedroom apartment at West Quad for $/month (negotiable) (January ). Why West Quad?On- gym and fitness centerLaundry facilities in the buildingStudy lounges and community spaces Secure entry and great managementSurrounded by food, coffee shops, and everything you needPerfect Location: Right next to campus, so you’ll be just steps away from classes, dining, and downtown life.This is an amazing deal for the area, and spots go fast!👉 Interested? DM me through Messenger for details.
Available Date: Immediately
Email Validated
Phone Validated
Luke, 21
CAMDEN PLACE TOWNHOME AVAILABLE
Entire place | Cambrooke Court, Dublin, OH, USA
We’re looking for someone to take over our lease for a bath townhome at Camden Place Apartments! ✨ Details: • Rent: $/month + $ amenities fee • Garage (required): $/month • Security Deposit: $ (one month’s rent) • Total rent is $ • Utilities are not included, Electric, gas, water are separate • Lease ends March • Half-finished basement • Washer/dryer hookups (can buy ours) • Private patio • Pet-friendly • Access to gym, pool, and the barn (community space)This is a spacious and comfortable townhome in a great community — perfect for anyone looking to move into a quiet area with great amenities and plenty of storage space! Must be approved through leasing office!!📦 Move-in date: November (or earlier) If interested or you’d like photos/a tour, please message me!
Available Date: Immediately
Address Checked
Email Validated
Phone Validated
Reagan, 35
Welcome to your new home!
Entire place | Rolling Meadows Lane, Akron, OH, USA
Get $ off the first month's rent when you sign your lease by October st.Step into a lifestyle you've always dreamed of in this stunning -bathroom townhouse. With its fresh paint and new carpeting, this spacious home boasts vaulted ceilings and generous closet space, making it ideal for anyone seeking room to thrive. Enjoy the convenience of an attached 2-car garage with keyless entry, a full basement for extra storage, and a charming patio enclosed by a privacy fence for your outdoor enjoyment. The inviting first-floor living area features a sliding glass door that opens to your private yard, perfect for hosting memorable barbecues or relaxing evenings. You'll find a full bath, a cozy bedroom, a fully equipped kitchen, and a laundry room with washer and dryer hookups also on this level.The second floor has two additional bedrooms and another full bath, providing ample space for family. Located in a serene and friendly cul-de-sac neighborhood, your new home is surrounded by beautiful greenery while remaining conveniently close to shopping, dining, and entertainment.Please note: This unit is non-smoking and pet-free.Don't wait, schedule your tour and take the first step toward your new life!A + Month Lease is available. A security deposit of one month's rent is due at lease signing. The tenant pays for electricity, trash, Internet, and cable/TV. The house has a well and water softener (no water or gas bill). The owner is responsible for water softener, and lawn maintenance.
Available Date: Immediately
Email Validated
Phone Validated
Collins, 28
House for rent
Entire place | South Souder Avenue, Columbus, OH, USA
******you can rent the whole house in January *****. have a house for rent the basement(has its own bathroom) has been rented out, upstairs has three bedrooms baths, is a shared space , one of the bedrooms has been rented out already, only two(2) bedrooms are available now, the house has only females with their pet dog, NO SMOKING in house, contact me for a tour and any questions- utilities are NOT included in the rent
Available Date: Immediately
ID Checked
Email Validated
Phone Validated
Yolanda, 27
Fully Furnished Studio (OSU campus)
Entire place | West Norwich Avenue, Columbus, OH, USA
Looking for someone to take my lease. It’s a fully furnished studio at The Urban apartment which is very close to OSU campus. The apartment is large, new, safe, and clean. Most residents are OSU students. No security deposit needed. Pet friendly. Garage parking. Wi-Fi included. The unit includes a full size bed with mattress, a desk, a refrigerator, a microwave, a kitchen sink, a tv, and in-unit ac. There’s a large common kitchen on each floor with all kinds of kitchenwares. There’s also a fitness room and a package room. Please send me an at or text me at ( if you are interested!
Available Date: Immediately
ID Checked
Address Checked
Email Validated
Phone Validated
Frequently asked questions
How many apartments are available in Ohio, USA?
There are 72 available apartments in Ohio, USA.
How to find an apartment in Ohio, USA?
On Roomster, searching apartments in Ohio, USA is simple. Type Ohio, USA and choose "Entire Place". Use advanced filters to find a perfect apartment you can keep to yourself or share with your roomies.
A map is loading






























































































































